
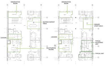
The Working Centre is a critical community support organization in the Kitchener/Waterloo region that has initiated a collaborative project with BNKC Architects and Perimeter Development to reimagine their 97 Victoria Street property. As a central campus for their operation serving those in need, the site contains an existing 2 storey late 19th century warehouse building, which currently serves as the home for St. John's Kitchen dining hall and community clinic, as well a second hand use retail store. As part of the expansion of support services in the campus, our design team lead the development of a proposal to renovate and add new building area to the site. The client team has began funding initiatives to help achieve high sustainability design standards, and has mobilized local expert consultant teams to realize the vision. The building goals include high performance envelope design, efficient heating and cooling systems, cross-laminated-timber construction, and photovoltaic solar energy arrays to help achieve carbon offset targets and a low energy use intensity. More importantly, the schematic design of the building seeks to foster a sense of support, inclusivity, and comfort for the vulnerable members of the community in need of a place to shelter and receive food. Transitional housing units are designed to meet the spatial constraints of the existing building, while also providing accessibility features and multi-purpose amenity spaces to assist the physical and mental health needs of the user group.
Project Role: Design Lead & Project Manager
Location: Kitchener, Canada
Client: The Working Centre & Perimeter Development Corporation
- Renovation and Addition expanding Homeless Support Services in Kitchener/Waterloo
- Sustainability and High Performance Envelope design approach
- Zero Carbon Design principles and Cross-Laminated-Timber construction
- In-Progress








This website uses cookies. By continuing to use this site, you accept our use of cookies.