
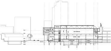
The landmark conference facility in the city of Ottawa was developed as a jewel sitting aside the famous Rideau Canal. With it's prominent address overlooking the Parliament of Canada, it was built with a Canal facing front-of-house, and an optimized back-of-house service corridor capable of supporting multiple events simultaneously. A central kitchen is located below grade, and allows for a singular access point to all rooms and halls above. As planning, design, and compliance (PDC) consultants, the B+H team was able to establish the circulation and programatic relationships that lay the foundation for the final curtain-like facade system (designed by BBB Architects) was implemented. It's relationship to the city of Ottawa, as well as it's neighbouring retail mall (Rideau Centre) has ensured that it is
Project Role: Designer
Location: Ottawa, Canada
Client: Ottawa Convention Centre Corporation
- Conference Hall Facility
- Completed 2011
- Winner 2012 OAA Awards - Design Excellence & People's Choice









This website uses cookies. By continuing to use this site, you accept our use of cookies.